
¿Cómo está ayudando el diseño de interiores en la crisis del coronavirus?
Espacios para ayudar a los héroes de esta pandemia.
No quiero engañaros ojalá pudiéramos tener una influencia más directa sobre la crisis sanitaria que estamos viviendo. Hacen falta respiradores, medicación, material sanitario de protección para la primera línea de atención a los enfermos. Ahí poco podemos aportar, pero sí tenemos una herramienta potente, nuestra creatividad para crear espacios que ayuden a quitar presión a las UCIs (Unidades de Cuidados Intensivos), que puedan ser una alternativa o incluso un alojamiento temporal para enfermeros y médicos si no pueden ir a casa, por miedo a contagiar a sus familiares o bien porque están desplazados de su casa para cubrir las bajas médicas en los focos de máximo crecimiento del coronavirus.
En esta sección suelo mostrar proyectos acabados esta vez se trata de renders y alguna imagen del prototipo construido. Soluciones que buscan aportar su grano de arena en imaginar una nueva realidad en la que las distancias mínimas, el espacio social, nuestros hábitos de higiene han sido modificados.
El proyecto CURA (Conected Units for Respiratory Aliment) tiene a Carlo Ratti liderando el equipo de profesionales; plantea una versión modular de los hospitales de campaña que están siendo construidos. Esta opción permitiría ampliar esa capacidad en los parkings de los propios hospitales, lo que evitaría desplazar al personal a una nueva ubicación. Se trata de unidades de biocontención gracias a un extractor que crea presión negativa en el interior de la unidad; cumplirían así con los estándares aplicados en los hospitales creados en China durante la crisis, buscando recortar el tiempo de ejecución. Una solución similar a la propuesta de tiendas de campaña o la rehabilitación de recintos feriales pero que buscaría minimizar también el riesgo de los profesionales sanitarios y pacientes creando un contenedor aislado para dos pacientes con necesidad de cuidados intensivos. Los diferentes containers se unirían mediante pasillos inflables, generando una solución escalable.



CURA Max Tomasinelli
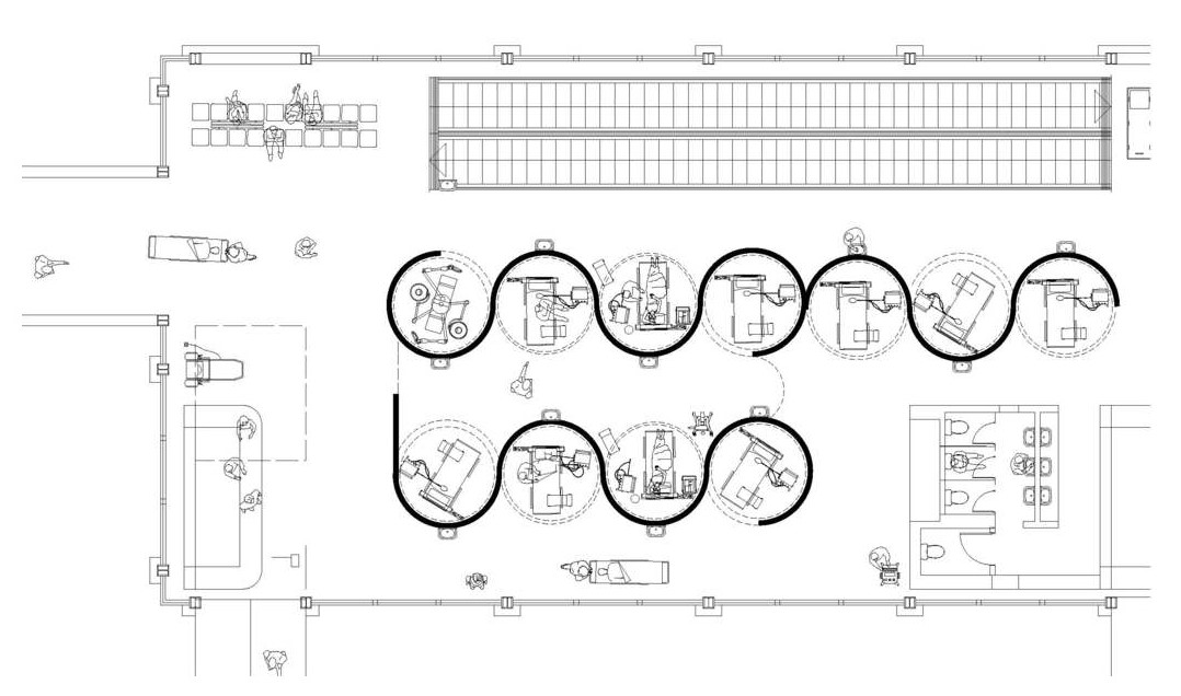
Por otro lado, el estudio de Opposite Office imagina un nuevo uso para el nuevo aeropuerto de Berlín en construcción desde 2006 y que actualmente no se podrá utilizar debido al impacto del covid19 en el sector de la aviación. A diferencia de la solución de CURA, plantea la reconversión de un no-espacio, subdividido mediante una estructura orgánica y textiles; buscan rediseñar los interiores para maximizar la capacidad de acogida, teniendo en cuenta que solo el edificio principal tiene 220.000 m2.


Opposite Office
Finalmente, JUPE es la adaptación de una solución para personas desplazadas, aplicado a la actual crisis sanitaria. Plantea unidades con diferentes usos, desde el de UCI como las dos propuestas anteriores, pero me interesa destacar la versión JUPE REST que tiene la intención de aliviar las condiciones de descanso del personal sanitario, que actualmente cuando vuelve a su hogar se auto-aisla para prevenir el contagio a sus seres más queridos. Quizás con estas unidades instaladas alrededor de los hospitales se podría aliviar la presión que sienten al respecto; una alternativa para que pudieran descansar de largas jornadas que están asumiendo.



JUPE- Health


