
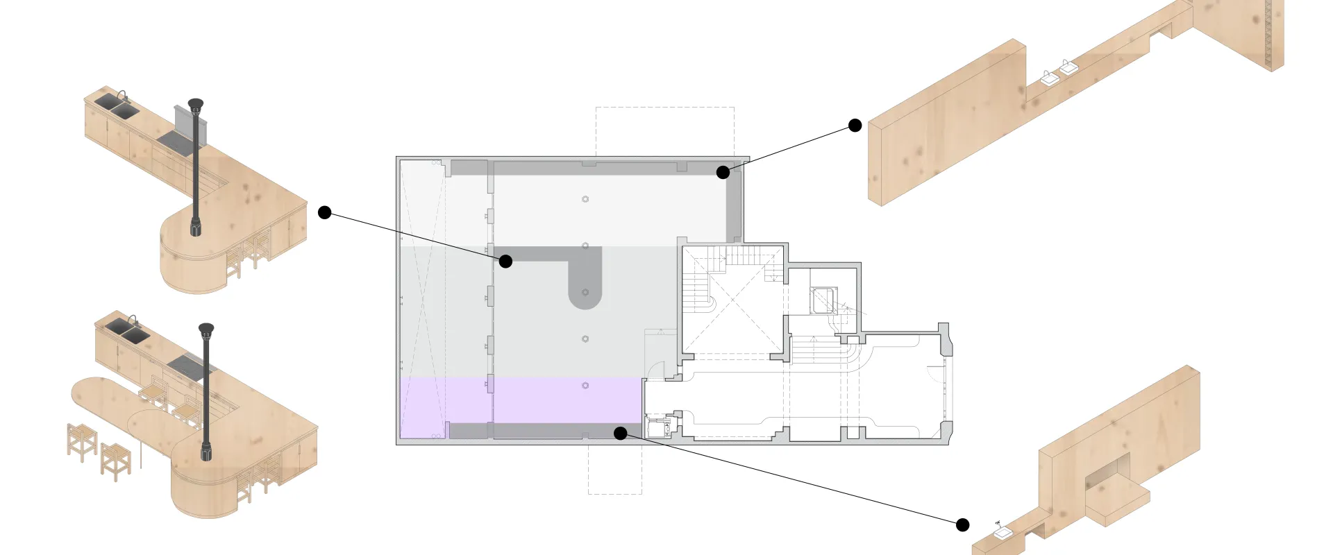
Recorrido semicircular
Laura Martínez, Ana Costas, alumnas del Máster en Diseño de Interiores de ESDESIGN, presenta su proyecto, Recorrido Semicircular.
El proyecto destaca por una metodología centrada en la empatía, donde el equipo se sumergió en la realidad de los clientes desde la fase conceptual. A través de la creación de hipótesis sobre sus estilos de vida y rasgos de personalidad, se logró un diseño coherente que conecta la distribución espacial con una propuesta decorativa personalizada.
Esta iniciativa representa un hito fundamental al simular con rigor un escenario profesional real, marcando un primer contacto decisivo con el sector del diseño. La pasión por la disciplina se refleja en cada detalle, consolidando una visión donde el interiorismo no solo organiza metros cuadrados, sino que interpreta y da respuesta a la identidad de quienes habitan el espacio.







