
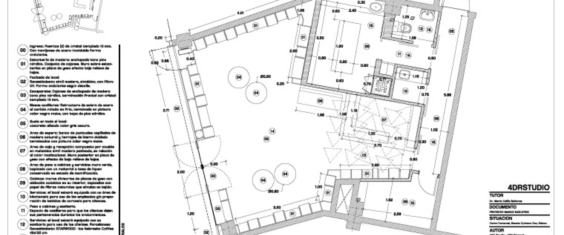
Centro Vital Bakalar
El proyecto se ubica en la zona de Bacalar-México y es concebido como una tienda de venta de productos orgánicos y de elaboración artesanal, con servicios personalizados de masajes y tratamientos corporales y faciales.
Siguiendo la tendencia Nurture, el espacio está rodeado de materiales nobles con un muro verde que conecta al consumidor con la naturaleza, transportándolo a la relajación a través del uso de placas de melamina, enchapados de madera de pino, placas exteriores maderadas con filtros UV, placas de yesos texturizadas, pisos de hormigón pulido, mobiliario en maderas naturales y hierro.
La función de interioristas no se concibe como la decoración del espacio, ya que no se trata solo de la manipulación del volumen, superficies o iluminación, sino de integrar elementos de psicología ambiental, ergonomía, funcionalidad e incluso de aspectos culturales de la zona.









